

KAWALERKA o pow.35 m2 / parter / w centrum Bolesławca
FOXHOUSE oferuje do sprzedaży przestronną kawalerkę, o powierzchni użytkowej 35,10…
250.000 zł
Jesionowa, Wrocław, Polska
Wynajem
3.300 zł + czynsz 800 zł + prąd


BUDYNEK Z WINDĄ – DWA POKOJE – DUŻY BALKON
MIEJSCE POSTOJOWE
UMEBLOWANE i WYPOSAŻONE
Gotowe do zamieszkania od zaraz!
Zwierzęta nie są akceptowane
FOXHOUSE oferuje do wynajęcia 3 pokojowe mieszkanie w nowym budownictwie, zlokalizowane we Wrocławiu / Tarnogaj, przy ulicy Jesionowej.
Nowy budynek, dwie windy, oddany do użytku w 2022 roku. Klatka schodowa ładnie wykończona. Obiekt monitorowany. Całodobowa ochrona.
Skorzystaj ze spaceru wirtualnego i zajrzyj do mieszkania:
>>> https://beta.walksee.pl/tour/tour-894a867a3d6a45d193d7d727e37ac7d2/viewer
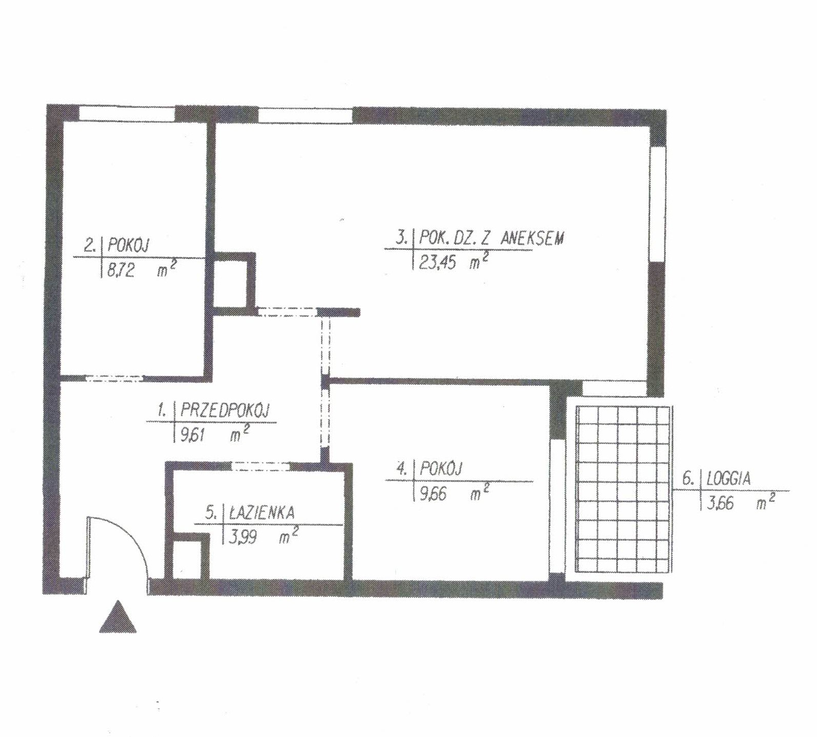
Mieszkanie z zadaszonym balkonem, rozkładowe, usytuowane na 7 – piętrze, o powierzchni użytkowej 55,79 m2, które składa się z:
Umeblowanie mieszkania:
– umeblowanie widoczne na zdjęciach, pozostaje w lokalu mieszkalnym.
Kuchnia w zabudowie, wyposażenie: lodówka z zamrażalką, zmywarka do naczyń, płyta indukcyjna, piekarnik elektryczny wbudowany w meble, pochłaniacz).
W łazience wanna, pralka.
W sypialni łóżko dwu-osobowe oraz duża szafa.
W mniejszym pokoju sofa z funkcją spania oraz duża szafa.
Dodatkowo w mieszkaniu pozostawiono m.in.: zastawę stołową.
W przedpokoju dużo miejsca do przechowywania – dwie szafy.
Miejsca postojowe w hali garażowej / poziom 0, jedno miejsce postojowe przypisane do lokalu mieszkalnego.
Brama wjazdowa na pilota.
Umowa najmu okazjonalnego – rygor egzekucji + wskazanie lokalu zastępczego
Cena najmu: 3.300 zł plus dodatkowe opłaty:
czynsz wspólnoty, około 800 zł – przy 2 osobach (w tym ogrzewanie, ciepła i zimna woda, śmieci, opłaty administracyjne)
Opłaty za prąd – wg wskazań licznika
Kaucja zwrotna: 4.500 zł
Minimalny okres najmu: 12 miesięcy
Lokalizacja:
Blisko do centrum, blisko do Dworca Głównego PKP Wrocław – 2 km.
Bardzo dobra komunikacja, w bliskim położeniu przystanki komunikacji miejskiej i tramwajowej:
– linie: 8, 31, 32, 125, 325 i inne
Uniwersytet Ekonomiczny w odległości 3 km
Wokół osiedla – pełna infrastruktura handlowo – usługowa.
Zapraszamy na prezentację.
W celu omówienia szczegółów oraz ustalenia terminu bezpośredniej wizyty,
Zainteresowanych zapraszam do kontaktu
chętnie udzielę dodatkowych informacji i umówię się na prezentację.
* współpracujemy z osobami zainteresowanymi bezpośrednio jak i z Agentami z innych biur nieruchomości
Nota prawna:
Informacje dotyczące opisu nieruchomości podane są przez Właściciela, mają charakter wyłącznie informacyjny i mogą podlegać aktualizacji. Oferta dotycząca nieruchomości stanowi zaproszenie do rokowań zgodnie z art. 71 Kodeksu Cywilnego i nie stanowi oferty określonej w art. 66 § 1 i następnych KC.
Niniejsze materiały stanowią tajemnicę firmy FOXHOSUE, w rozumieniu ustawy z dnia 16 kwietnia 1993 r. o zwalczaniu nieuczciwej konkurencji (Dz. U. z 2003 r., Nr 153, poz. 1503 z późn. zm.).


FOXHOUSE oferuje do sprzedaży przestronną kawalerkę, o powierzchni użytkowej 35,10…
250.000 zł


FOXHOUSE oferuje na sprzedaż, nieruchomość w Szczytnicy. Przestronne dwupokojowe mieszkanie,…
199.000 zł



